Below is a quick access index to the most popular CAD enquiries I receive
We are a husband & wife team based in the heart of Yorkshire England. Providing a comprehensive core CAD service to individuals, companies & contractors both throughout the UK & World Web. Whether you have a project requiring 40+hrs weekly or just a couple of days. We compile 2d DWG files & schematics. 3d mechanical solid modelling & fabrication drawings. B.I.M models for any size project. Please do not be put off by the large utility projects shown on this site for M.E.P. We are just as happy to work on small projects.
Paul & Steph
Engineering CAD Services
We pride ourselves on being able to work on both large or bespoke & low production volume projects directly with the client or their engineers. All the images used on this site are a result of this & go back many many years.
The project below shows twin 10kw axial flux motors & stern gear housed in a custom designed & built stubby frame to power a 17 tonne barge.
As many off-the-shelf components are used as possible & 3d models of these can be generated from physical measurements & 2d drawings. Others such as the motors shown in this design are courtesy of Lynch motor company who manufacture these compact yet powerful motors here in the UK.

3D MODELS ARE TURNED INTO 2D ENGINEERING DRAWINGS & DXF FILES FOR CNC WORK ( not shown for client patent protection )
M.E.P. CAD Services
MRI Hospital Manchester. Proposed route for steam & condensate pipework to feed both existing & new plant-rooms. This is our provisional roof layout produced from footprint drawings & aerial photographs. As this building has been added on to many times over the years, the CAD model is a work in progress & will be updated as survey data is compiled.

A Section Through The Roof Plantrooms

Planning Application Drawings
We provide a drawings only service to. Home owners. Builders & developers. Simple extensions to full houses.
Planning Applications sets. Location Plan. Site Plan. Elevations & GA's. These can be expanded to Building Control & contractors drawings when you are ready.

Architectural CAD Technician Services & BIM ( Building Information Modelling )
With many year experience in the construction industry. We offer a high quality CAD drawing only service directly to Self-builds, Builders & Architectural companies
3D Modelling & 2D Architectural CAD Service for planning applications. Construction & Detailing drawings.
Architectural CAD service for architects, designers & self-builds. Plans, elevations, technical detailing & 3d visuals.
COMBINED HEAT & POWER C.H.P.
Bespoke 3d solid modelling of UK pipework. Victaulic. PN 6 - 40 Flanges DN15 to DN350. Gantry & equipment fabrication drawings.
M.E.P. (Mechanical, electrical & plumbing) 3d systems & drawings

Production Line Design
Machinery & Production Lines
Below is a section through a powder-coat spray line. Auto-manual-auto-manual.
Any type of mechanical / production line can be designed, rearranged to suit available space & service points. The design can be purely for evaluation or with full fabrication & sheet metalwork drawings.
3d blue print design to fabrication
Engineering & Prototype Drawings
- Engineering drawings
- Prototype 3D models
- Fabrication drawings
- DXF files for CNC cutting
- Sheet metal drawings
The vast majority of 3d engineering models I produce are for small fabrication companies that specialise in one-offs & short production runs. To the right is typical of such a project, its purpose is to align a pharmaceutical product correctly for packaging.
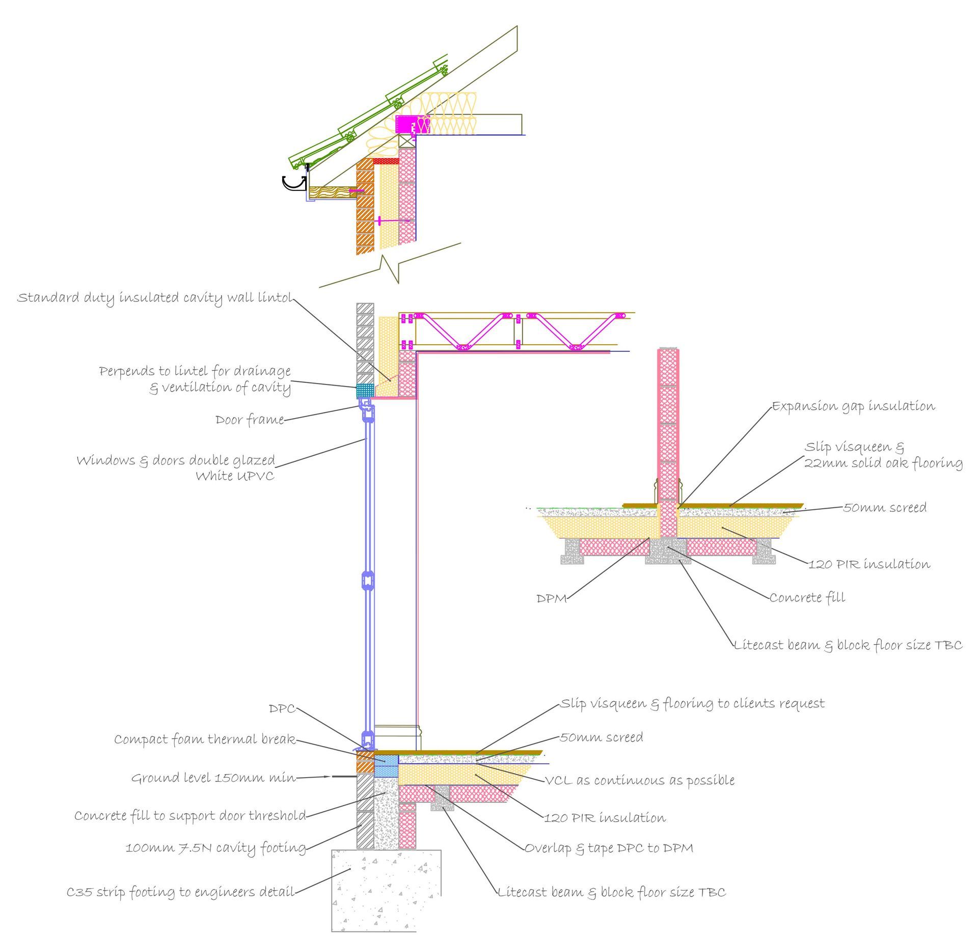
Construction & Planning Drawings
Construction Drawings
- Basic planning & building control drawings
- Factory & commercial building layout drawings
- Contractors General Arrangement & Reflected Ceiling Plans
- Electrical & plumbing schematics
- Construction detail drawings
- B.I.M. Building information modelling
Construction drawings cover a wide & varied spectrum, from simple planning application drawing & general arrangements to connection detailing sets & schematics. This knowledge does not come out the CAD program, it comes from the technician using it.
B.I.M. (building information modelling) is now being used on smaller building projects, which generates basic building structures & elevations very quickly. However these programs do not allow for connection details or regional building regulation. These must still be detailed in 2 or 3d family by an architectural technician.

Engineering Schematics
Plumbing. Pipe & Instrumentation & Electrical schematics & isometrics.

Schematic drawing compiled as pdf's or dwg's . Schematics can involve just about anything from utilities to multistorey buildings & can be compiled from sketches, multiple schematics into one or raw data.


