Combined Heat & Power CAD Service.
Onsite CAD Services Ltd. Brough
C.H.P. (combined heat & Power)
M.E.P. (mechanical electrical plumbing)
P&ID (pipe & instrumentation diagram)
Combined Heat & Power
C.H.P. (combined heat & power) systems. Energy centres for industrial estates, hospitals & utilities.
I produce working 3D assemblies to the clients P&ID's (piping and instrumentation diagrams), my own site surveys & 3D scans if available. All the 3D models & site layouts on this website no matter how complicated or large have been produced by myself. I have compiled a vast library of parts, Carbon & stainless steel pipe-work fittings, pumps, tanks, cylinders, motors & hundreds of valves etc, from DN 25 to DN350 & BSP. Gantries are all bespoke & unique to the application.
I work from both my office in Yorkshire & directly on site when conducting surveys, covering the whole of the UK, such as the project below. The Royal Berkshire Hospital in Reading completed 2022. The model shows the energy centre, service undercroft & all the plant-rooms that it served.
Large 3D models
Hospital service undercroft to plant-rooms
This is the service undercroft & plant room layout. The Royal Berkshire Hospital Reading.

Zoom in a little to the bottom left hand side
Energy centre & 3 plant-rooms
This is the energy centre & undercroft to the first 3 plant rooms
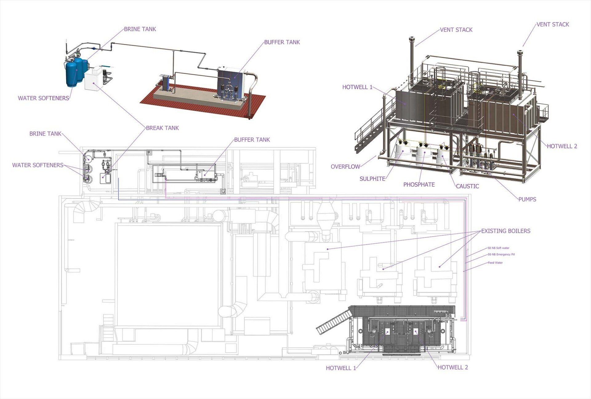
Water treatment
Preparing water for use in a C.H.P. system
The water is softened, preheated from the C.H.P heat-exchangers, deaerated & stored in hot-wells before being used in the LTHW (low temperature hot water) boilers.

Heat recovery from the C.H.P generator
Below shows the C.H.P generator connected to the primary, secondary & gas heat exchangers detailed in the C.H.P system below, this recovered heat is used to pre-heat the water feeding to L.T.H.W (low temperature hot water) boilers
Combined Heat & Power System

The image above is the C.H.P. pipework layout I produced for an upgrade to an existing energy centre supplying an industrial estate, the new system had to be designed in 3D from P&ID schematics & site surveys around the original pipework & boilers then commissioned in stages.
Below is the site layout for the C.H.P system detailed above.
Site Layout for a C.H.P energy centre

If you have a project you feel could benefit from my services, I would be more than happy to set up a mobile CAD system at your head office or facility & discuss your requirements.
Paul
